Tilbygg - ekstra stue

HOFF ARKITEKTUR - arkitekt Jeanette Hoff.

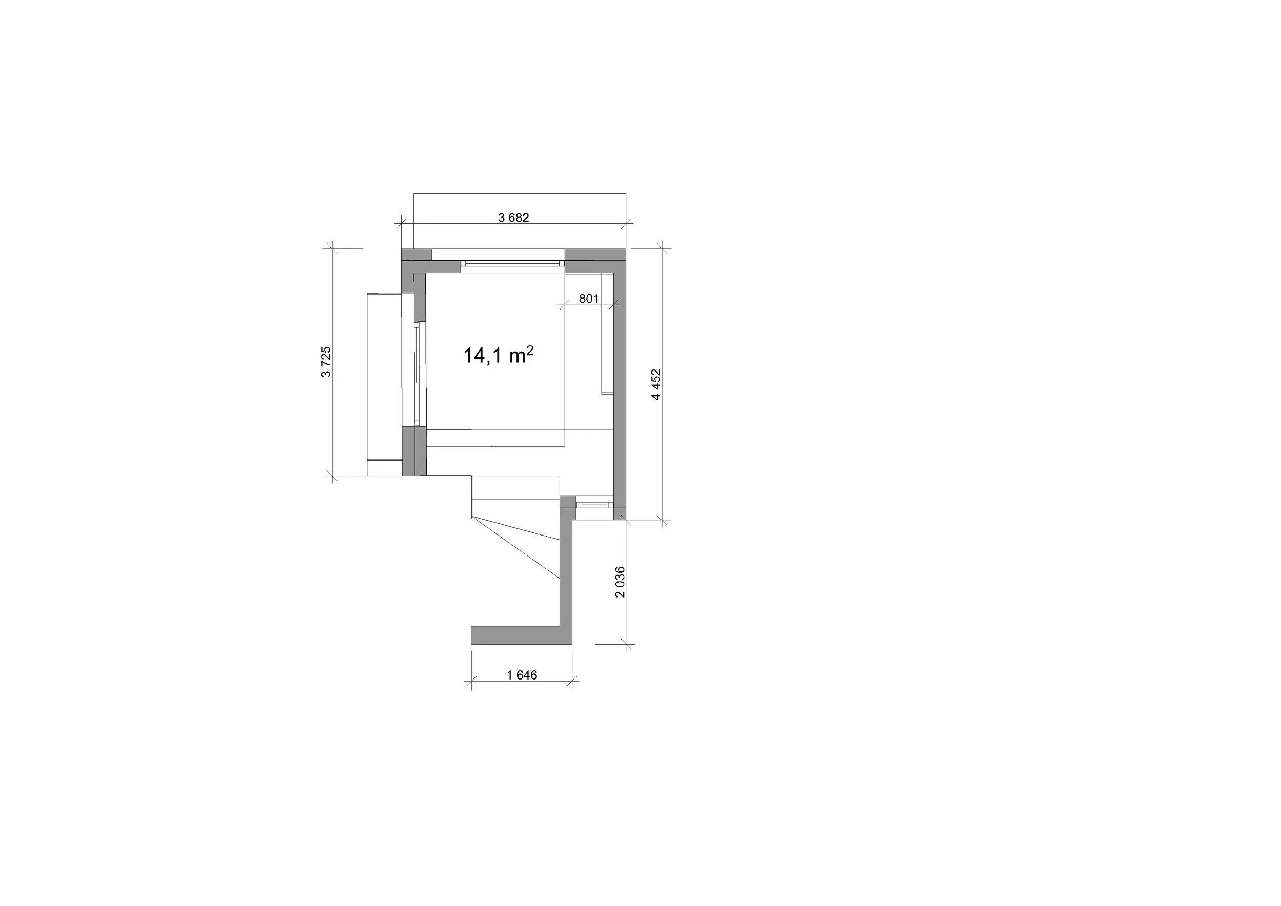
Falsens vei: Enebolig i tre fra 1911 - på 123m² fordelt over tre etasjer.

 Tilbygget skal i hovedsak være et oppholdsrom/stue - med god plass til å både sosialisere og slappe av.

Det ønskes også fokus på innebyggete møbler - som kan ha flere funksjoner og hvor trappen til hovedetasjen også kan være med på å bli et møbel i seg selv, både til opphold og til oppbevaring.

🏘 Avsluttet

Forrige
Forrige

Landåslien

Neste
Neste

Erika Nissens gate